Apartment XVI
The renovation was driven by the client's desire for a cozy and holiday-friendly home.
The design combines elements from different cultures to create a unique and captivating atmosphere that reflects personal style and mood.
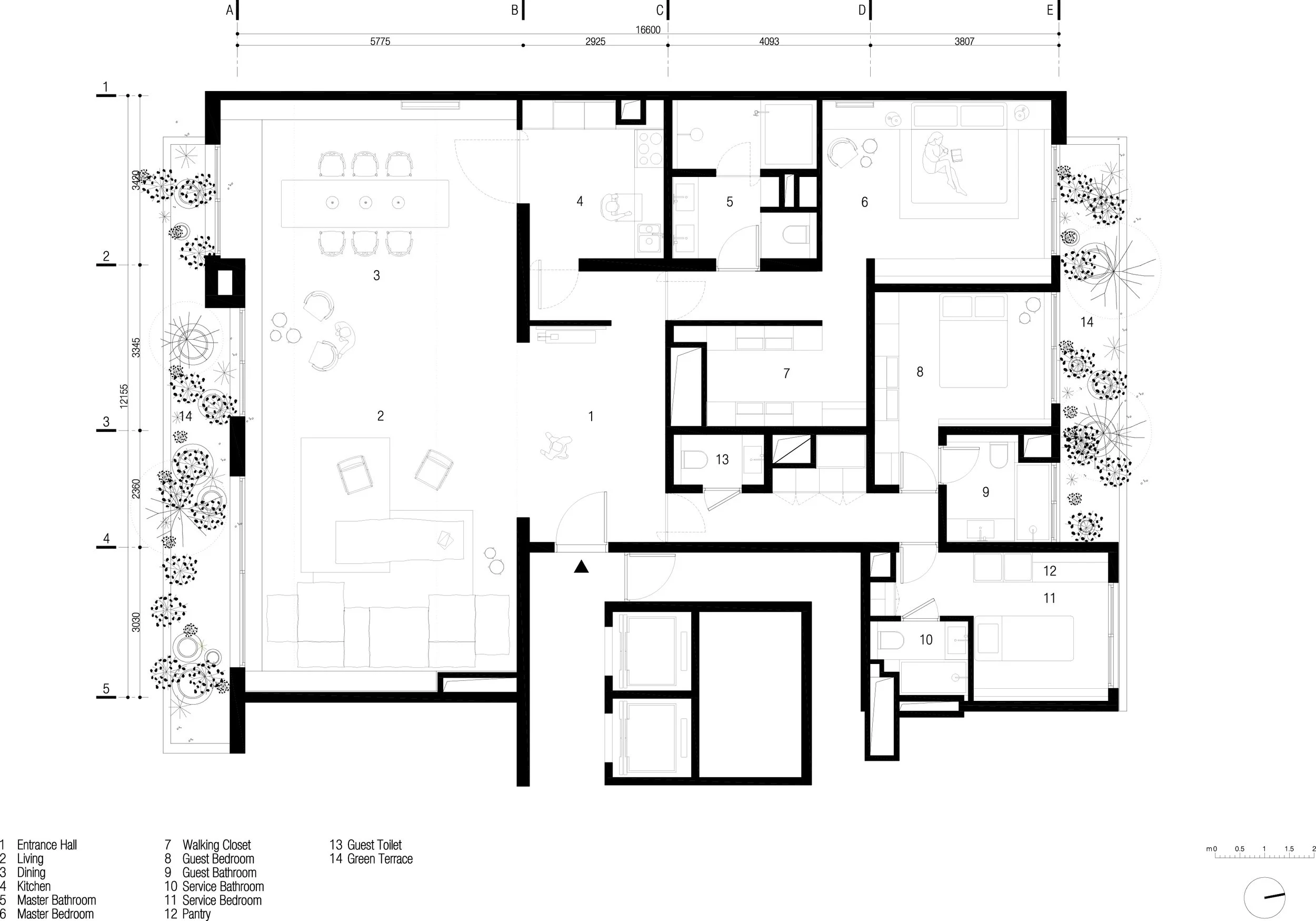
Drawing inspiration from the natural landscapes of Lebanon and urban settings in Paris, the selection of materials and colors creates a harmonious blend among surfaces, furniture, and art. The space is divided into two areas: a street-facing section for the living room and common areas, and an inward section for the sleeping area, services, and maid's accommodation.
Location
Paris, France
Client
Private
Status
Uncompleted
Year
2019 - 2022
Based on the natural colors and materials found in both Lebanese landscapes and the urban settings of Paris, the images of spaces and temporal moments, reveal spatial experiences throughout different hours of the day.









The layout prioritizes a spacious living room that opens up to the south side, offering panoramic views from all rooms, including the master and guest units.
Here is a selection of items and elements included in the space:





